索引号:000014348/2025-25977

发布机构: 自然资源和规划局

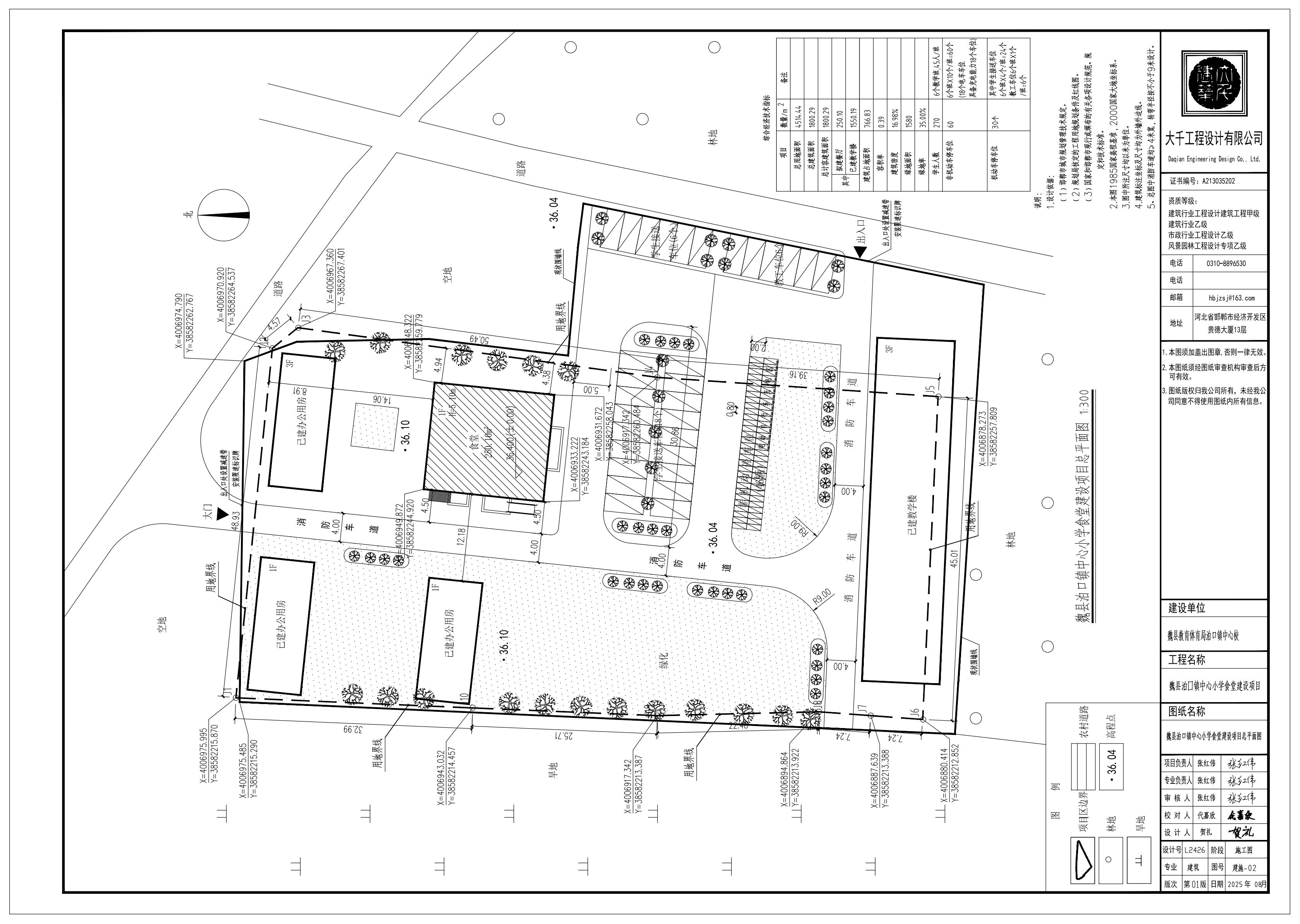
名称:魏县泊口镇中心小学食堂建设项目乡村建设规划许可公示

文号:乡字第130434202500005号

主题分类:项目建设批准实施

发布日期:2025-11-18

魏县泊口镇中心小学食堂建设项目乡村建设规划许可公示

建设单位(个人):魏县教育体育局泊口镇中心校

建设项目名称:魏县泊口镇中心小学食堂建设项目

建设位置:魏县泊口镇中心小学院内

建设规模:新建1栋食堂及配套管网、消防等附属设施,食堂建筑面积为250.10平方米(框架结构,地上1层)。

总平面图-建施-魏县泊口镇中心小学食堂建设项目_00.jpg