索引号:000014348/2025-25853
发布机构: 自然资源和规划局
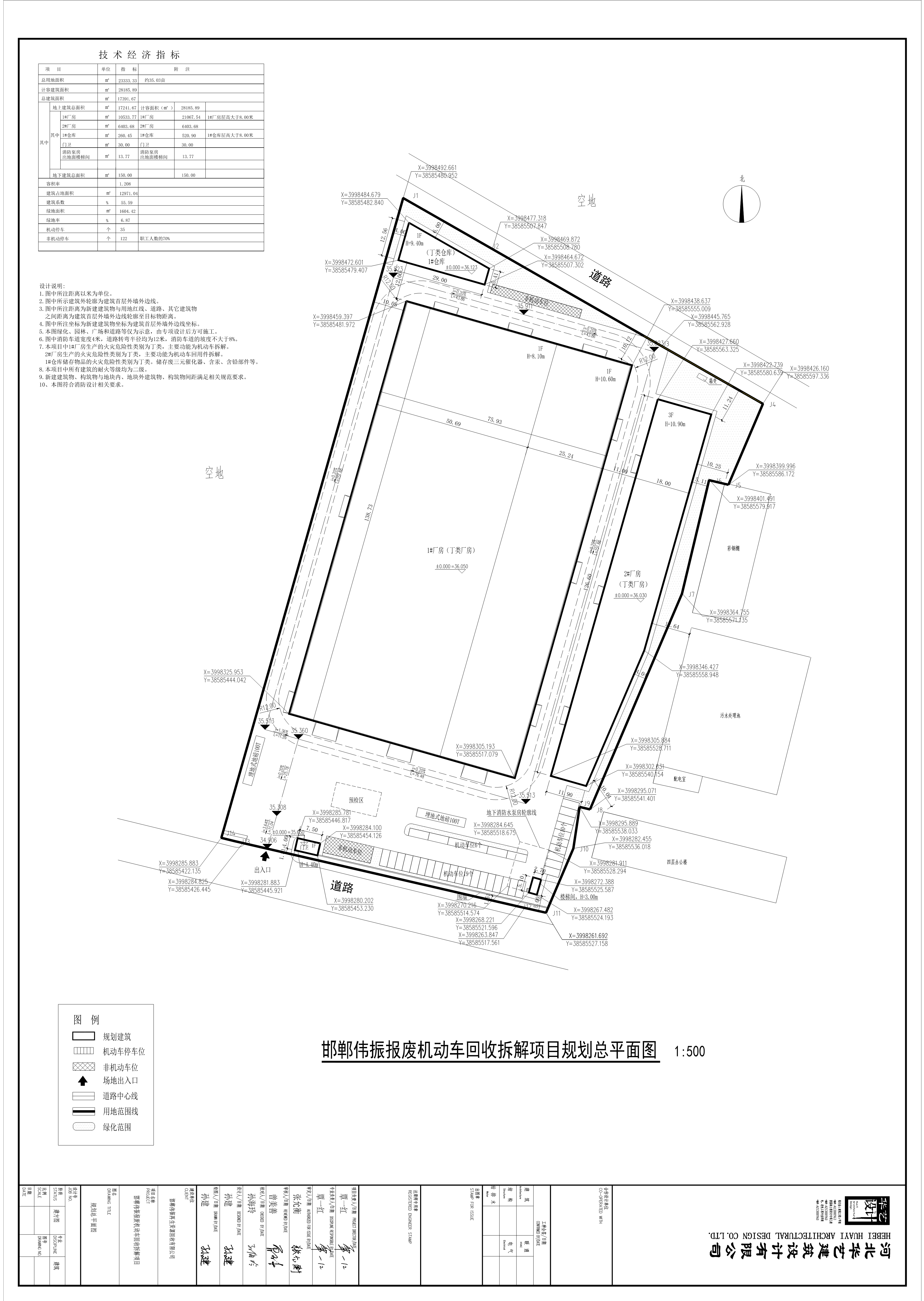
名称:邯郸伟振报废机动车回收拆解项目总平面图批前公示
文号:
主题分类:项目建设批准实施
发布日期:2025-10-22
魏县自然资源和规划局
关于魏县邯郸伟振报废机动车回收拆解项目的规划公示
为便于群众参与城市规划管理,保证城市规划顺利实施,我局对该项目规划设计方案总平面图进行批前公示,公示期间如您对该项目方案有不同意见,向魏县自然资源和规划局反馈。
联系单位:魏县自然资源和规划局建筑工程规划股、行政许可服务窗口
联系电话:0310-3518123
监督电话:0310-3521304
建设单位名称 | 邯郸伟振再生资源回收有限公司 | ||
建设项目名称 | 邯郸伟振报废机动车回收拆解项目 | ||
建 筑 性 质 | 工业 | ||
建 设 位 置 | 魏县张二庄镇循环经济产业园区内 | ||
建 筑 面 积 | 17391.67平方米 | ||
建 筑 高 度 | 详见附图 | ||
公 示 时 间 | 2025年10月12日 | 至 | 2025年10月22日 |
2025年10月12日
